Проектування систем вентіляції з рекупераціею воздуха
Проектування систем вентіляції з рекупераціею воздуха
Усі наші клієнти мають одне загальне. Їм потрібна надійна, правильна, професійно спроектована і елегантна система вентиляції. Причому, на вимогу часу, з рекуперацією тепла. Це завдання можна вирішити по-різному. Хто будує на око (все 100й трубою), хто бере аналогію з побачених прикладів.
Наша компанія керуючись девізом: Ми розгорнемо Ваше життя на краще, пропонує нашим клієнтам найбільш вийгришний варіант проектування систем вентиляції з рекуперацією тепла. Тепер, якщо Ви вирішили створити заново або модернізувати стару систему вентиляції ввівши в неї модуль рекуперації, ми можемо запропонувати Вам професійний підхід, розрахунок і створення системи для Вашого будинку, цеху, кафе, кухні або сушки, офісних приміщень тощо. Досвідчений проектувальник врахує всі побажання замовника і гармонійно поєднає їх з технічними можливостями нашої компанії. Разом ми побудуємо чудові системи для поліпшення якості праці та життя людей.
У Києві та області можливий виїзд фахівця на об'єкт.
В іншій ситуації по документації на об'єкт і узгодженим вимогам замовника розробка проекту системи вентиляції з рекуперацією тепла, проводиться дистанційно.
Вартість базового варіанту проекту системи вентиляції з рекуперацією тепла на базі рекуператорів виробництва компанії Chandelle для типового будинку в 120кв.м. - від 1700 грн .
Приклади робіт з проектування систем вентиляції
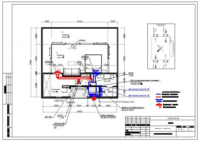
План системи вентиляції кемпінгу
 |
 |
| План системы вентиляции кемпинга |
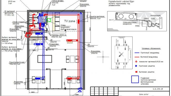
Проект системи вентиляції з рекуперацією тепла в ігровій
 |
 |
| Частина проекту системи вентиляції з рекуперацією тепла в ігровій |
Проектування системи кондиціонування
 |
 |
| Малюнок для проектування системи кондиціонування |
Система вентиляції кінотеатрів
 |
 |
| Система вентиляції кінотеатрів |
Вентиляція фізіотерапевтичного відділення санаторію
 |
 |
| Вентиляція фізіотерапевтичного відділення санаторію |
проект вентиляції і кондиціонування приватного будинку
 |
 |
| проект вентиляції і кондиціонування приватного будинку |
Наведені приклади наочно демонструють як наші можливості, так і те, що наші клієнти сміливо можуть довірити нам вирішення завдань зі створення систем вентиляції та рекуперації тепла на своїх об'єктах.